Lot 4- Près du centre, vue imprenable,verte, permis accordé
-
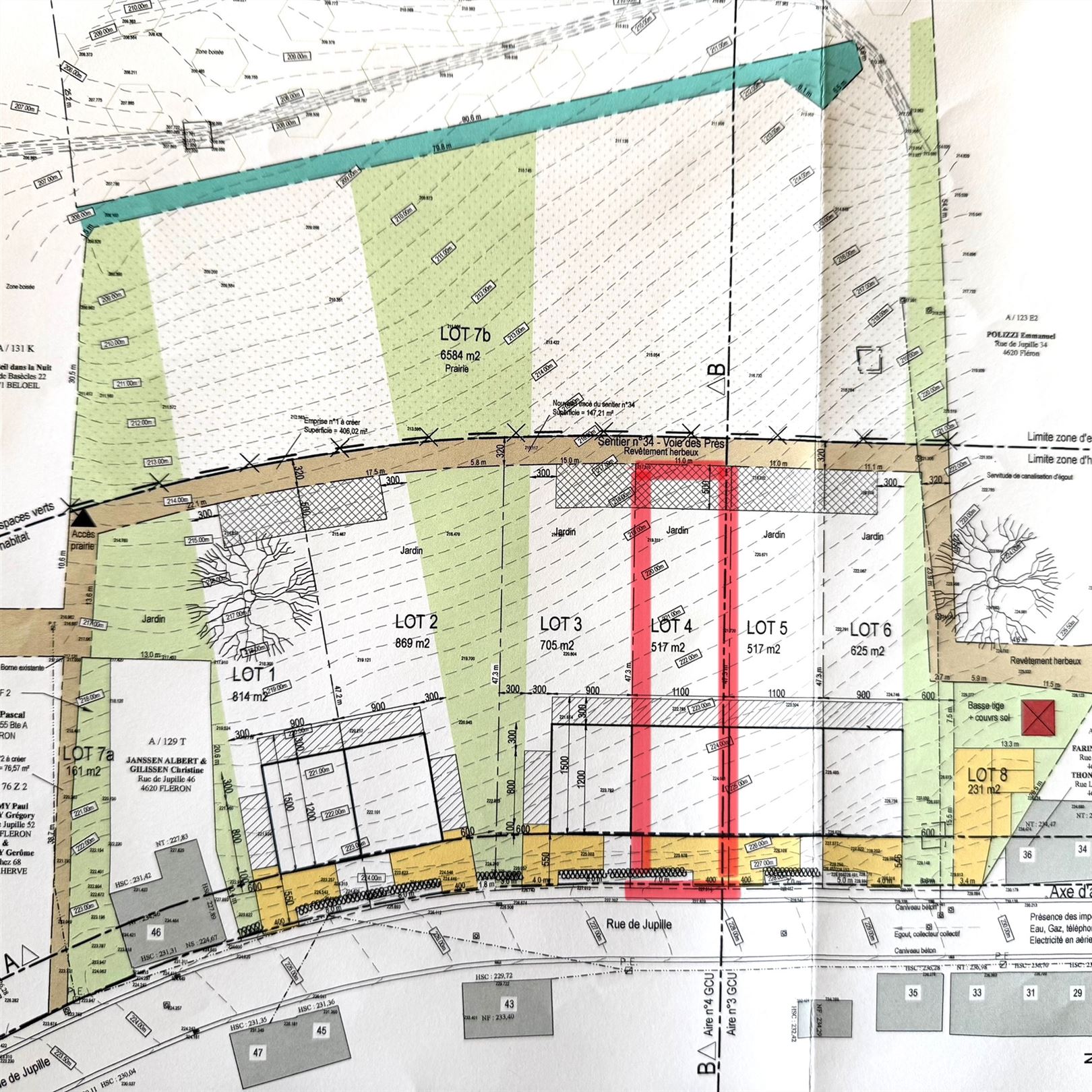
517 m2
Dimensions données à titre informatif et non contractuelles.
-
Surface du terrain
517 m2
-
Gaz
Oui
Téléphone
Oui
Électricité
Oui
Eau
Oui
Cuisine
Non communiqué
Chauffage
Non communiqué
Chauffage
Non communiqué
Vous êtes intéressé par ce bien ?
Prenez contact directement avec le responsable
Werner EFFERTZ

Agence de Chaudfontaine
Century 21 Immo Effertz
Rue Vallée 13 - Chaudfontaine
Tél. 04 365 92 07
effertz@effertz.be
Simulez votre prêt immobilier
Calculez vos mensualités, le montant ou la durée de votre prêt immobilier.