Nos stratégies pour vendre votre bien

Planifiez votre rendez-vous en 2 minutes.

Prendre rendez-vous
Retour aux résultats

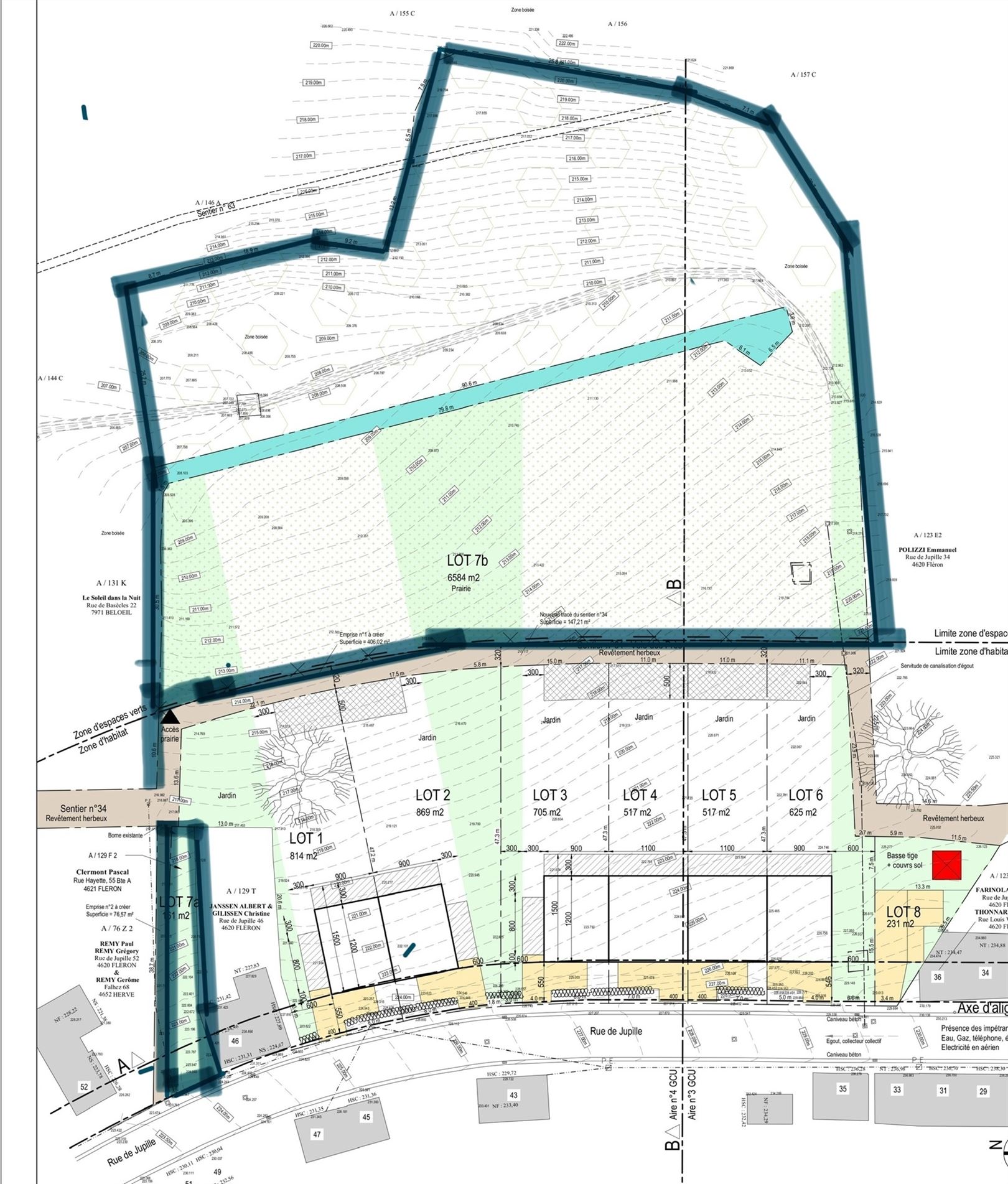
Terrain - FLÉRON (4620) Ref. 23361

Photo principal de la maison

131.680 €

Clôturé en zone agricole et forestière, point d'eau, accès

  • 6584 m2

Dimensions données à titre informatif et non contractuelles.

  • Surface du terrain

    6584 m2

  • Cuisine

    Non communiqué

    Chauffage

    Non communiqué

    Chauffage

    Non communiqué

Vous êtes intéressé par ce bien ?

Prenez contact directement avec le responsable

Werner EFFERTZ

Photo de Werner +32 43 42 21 21 Via le formulaire

Agence de Chaudfontaine

Century 21 Immo Effertz
Rue Vallée 13 - Chaudfontaine
Tél. 04 365 92 07
effertz@effertz.be

Voir l'itinéraire

Simulez votre prêt immobilier

Calculez vos mensualités, le montant ou la durée de votre prêt immobilier.

X €/mois
)

Vous êtes intéressé par ce bien immobilier ?

Organisons un rendez-vous ! Pour cela, vous avez 2 possibilités.

  • Appelez-nous au 04 365 92 07 pour l’Agence de Chaudfontaine
  • Remplissez le formulaire et l’un de nos agents experts prendra contact avec vous afin de planifier un rendez-vous.

Tout traitement des données personnelles vous concernant est effectué dans le respect des dispositions légales applicables en la matière.

La protection des données personnelles est une question de confiance et votre confiance nous tient à cœur.