Nos stratégies pour vendre votre bien

Planifiez votre rendez-vous en 2 minutes.

Prendre rendez-vous
Retour aux résultats

Studio - LIÈGE (4000) Ref. 23491

Photo principal de la maison

105.000 €

PEB d

Studio idéal comme 1er achat ou investissement au coeur de LIège

avenue Rogier, 29, 4000 LIÈGE
  • 1

  • 39 m2

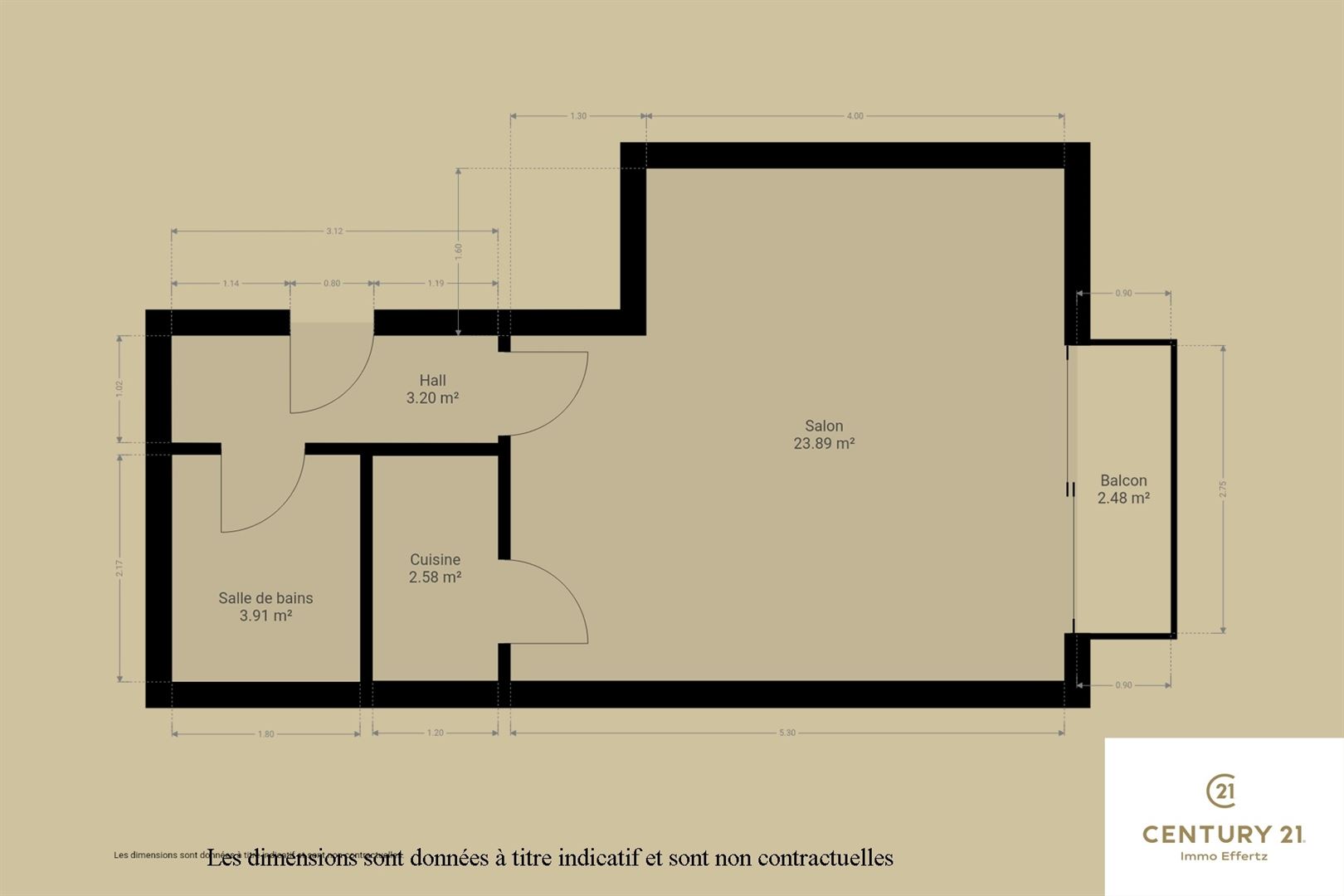
Situé en plein cœur du centre de Liège, ce studio lumineux sis au 9ᵉ étage d’un immeuble bien entretenu offre un cadre de vie agréable à proximité immédiate de toutes les commodités (commerces, transports, écoles). En bon état général, il se compose d’un espace de vie fonctionnel agrémenté d’une cuisine équipée, idéale pour un usage quotidien ou un investissement. Le bien bénéficie également d’un balcon offrant une vue dégagée sur la ville. Ce studio dispose de nombreux atouts techniques tels qu'une installation électrique conforme et des compteurs individuels pour une gestion optimale des consommations. Son certificat PEB de catégorie D en fait un bien équilibré sur le plan énergétique. Une opportunité idéale tant pour un premier achat que pour un investissement locatif au cœur de Liège.

Dimensions données à titre informatif et non contractuelles.

  • Parlophone

    Oui

    Electricité bi-horaire

    Oui

    Compteur eau individuel

    Oui

    Compteur électrique individuel

    Oui

  • Surface habitable

    39 m2

    Nombre de salles de bain

    1

    Nombre de toilettes

    1

    Disponibilité

    A l'acte

    Etat

    A rafraîchir

  • Surface de la terrasse

    2.5 m2

    Orientation de la terrasse

    Est

  • Revenu cadastral non indexé

    540 €

  • Cuisine

    Entièrement équipée

    Chauffage

    Electrique direct

    Chauffage

    Individuel

    Vitrage

    alu

    Vitrage

    Double

    Ascenseur

    Oui

  • Année de construction

    1976

  • Énergie primaire

    290 kWh/m2

    Code unique PEB

    20260320017096

    Cons. tot. d'énergie prim.

    10866 kWh

    PEB

    PEB D

Vous êtes intéressé par ce bien ?

Prenez contact directement avec le responsable

Vanessa WENKIN

Photo de Vanessa +32 43 42 21 21 Via le formulaire

Agence de Liège

Century 21 Immo Effertz
Place du Parc 87 - Liège
Tél. 04 34 22 12 1
immoeffertz@effertz.be

Voir l'itinéraire

Simulez votre prêt immobilier

Calculez vos mensualités, le montant ou la durée de votre prêt immobilier.

X €/mois
)

Vous êtes intéressé par ce bien immobilier ?

Organisons un rendez-vous ! Pour cela, vous avez 2 possibilités.

  • Appelez-nous au 04 34 22 12 1 pour l’Agence de Liège
  • Remplissez le formulaire et l’un de nos agents experts prendra contact avec vous afin de planifier un rendez-vous.

Tout traitement des données personnelles vous concernant est effectué dans le respect des dispositions légales applicables en la matière.

La protection des données personnelles est une question de confiance et votre confiance nous tient à cœur.